





Ürün Açıklaması
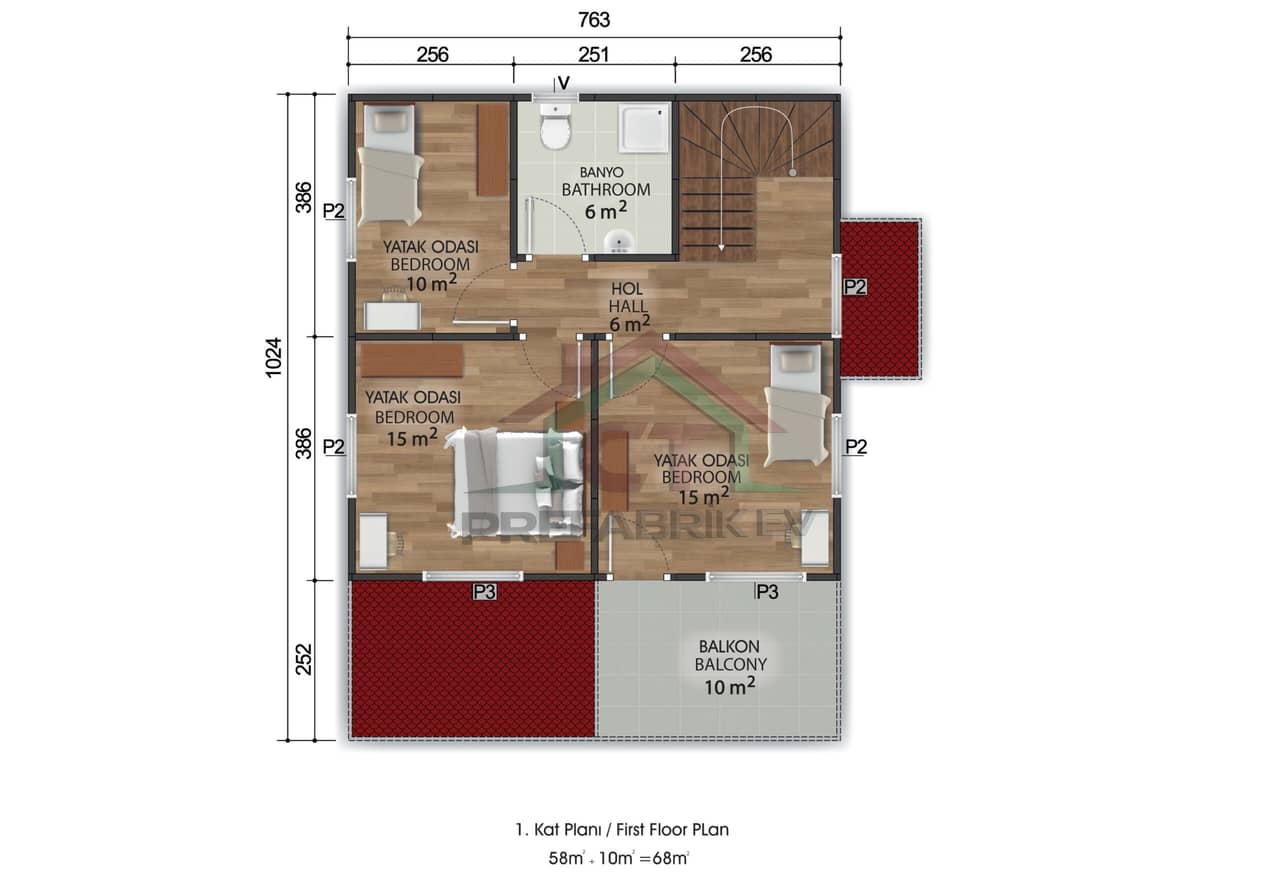
Ürün Metrekare 149 M2 Elektrik Tesisatı Sıva Altı Köşe Kaplama Tüm Köşeler için Estetik Betopan Köşe Kaplamaları Pencereler Kurşunsuz PVC ERPEN Sıhhi Tesisat Sıva Altı Dış Cephe Ahşap desenli Betopan Oda Sayısı 4+1 Bina Yüksekliği 2,50 Banyo Sayısı 1 İç Duvar 10 cm Dış Duvar 10 cm Çatı Kaplaması Boyalı Galveniz Sac, Metal Kiremit(Opsiyonel), Shi Kat Sayısı 2 İç Kapı Amerikan Göbekli Kapı Balkon Kapısı 2 4+1 Çift Katlı 149 m2 Prefabrik Ev – Modern Tasarım ve Estetik Yaşam Alanı Aileniz için ideal bir yaşam alanı! 149 m2, 2 katlı, 4+1 prefabrik ev modelimiz, şık tasarımı, dayanıklı yapısı ve geniş iç mekan düzeni ile konforlu bir yaşam sunuyor. Estetik dış cephe malzemeleri, kaliteli iç detaylar ve modern yaşam alanlarıyla bu ev, aileler için mükemmel bir seçenek. Ev Özellikleri ve Kullanıcıya Sunulan Konfor Estetik ve Dayanıklı Dış Cephe: Ahşap desenli Betopan dış cephe, evinize doğal bir görünüm katarken, sağlam yapısıyla dış etkenlere karşı mükemmel koruma sağlar. Dayanıklılığı ile uzun yıllar güvenle kullanabilirsiniz. Geniş İç Mekan ve Fonksiyonel Tasarım: 3 odalı bu ev, 149 m²’lik kullanım alanı ile geniş ve ferah bir iç mekan sunar. Aileniz ve misafirleriniz için konforlu yaşam alanları yaratılmıştır. Yüksek Isı ve Ses Yalıtımı: İç duvarlar 10 cm, dış duvarlar ise 10 cm kalınlığında olup, mükemmel ısı ve ses yalıtımı sağlar. Böylece enerji tasarrufu sağlarken, daha rahat bir yaşam alanı sunar. Şık Pencereler ve Güvenli Kapılar: Kurşunsuz PVC ERPEN pencereler, yüksek güvenlik ve yalıtım sağlar. PVC Kapı Pakpen balkon kapısı, hem dayanıklıdır hem de estetik bir görünüme sahiptir. Sıva Altı Elektrik ve Sıhhi Tesisat: Elektrik ve sıhhi tesisat sıva altına döşenmiş olup, evin iç mekanının düzenini korur ve güvenli bir kullanım sunar. Çatı ve Kapı Tasarımı Çatı Kaplama Seçenekleri: Çatıda boyalı galvaniz sac kullanılmıştır. Bu malzeme, uzun ömürlü ve dayanıklıdır. Metal kiremit opsiyonu da tercihe bağlı olarak kullanılabilir, bu da evinize şıklık katar. İç Kapılar: Evin iç mekanlarında Amerikan göbekli kapılar tercih edilmiştir. Bu kapılar, estetik ve şıklığı bir arada sunar. Evde Kullanılan Malzemeler ve Kalite Estetik Betopan Köşe Kaplamaları: Tüm köşelerde kullanılan Betopan köşe kaplamaları, hem dayanıklı hem de şık bir görüntü sunar. Sıva Altı Elektrik ve Sıhhi Tesisat: Sıva altına döşenen elektrik ve sıhhi tesisatlar, estetik bir iç mekan sunarken, güvenli kullanım sağlar.
4+1 Çift Katlı Prefabrik Ev 149 m2
Ücretsiz Kurulum






4+1 Çift Katlı Prefabrik Ev 149 m2
Ücretsiz Kurulum
Ürün Açıklaması
Ürün Metrekare 149 M2 Elektrik Tesisatı Sıva Altı Köşe Kaplama Tüm Köşeler için Estetik Betopan Köşe Kaplamaları Pencereler Kurşunsuz PVC ERPEN Sıhhi Tesisat Sıva Altı Dış Cephe Ahşap desenli Betopan Oda Sayısı 4+1 Bina Yüksekliği 2,50 Banyo Sayısı 1 İç Duvar 10 cm Dış Duvar 10 cm Çatı Kaplaması Boyalı Galveniz Sac, Metal Kiremit(Opsiyonel), Shi Kat Sayısı 2 İç Kapı Amerikan Göbekli Kapı Balkon Kapısı 2 4+1 Çift Katlı 149 m2 Prefabrik Ev – Modern Tasarım ve Estetik Yaşam Alanı Aileniz için ideal bir yaşam alanı! 149 m2, 2 katlı, 4+1 prefabrik ev modelimiz, şık tasarımı, dayanıklı yapısı ve geniş iç mekan düzeni ile konforlu bir yaşam sunuyor. Estetik dış cephe malzemeleri, kaliteli iç detaylar ve modern yaşam alanlarıyla bu ev, aileler için mükemmel bir seçenek. Ev Özellikleri ve Kullanıcıya Sunulan Konfor Estetik ve Dayanıklı Dış Cephe: Ahşap desenli Betopan dış cephe, evinize doğal bir görünüm katarken, sağlam yapısıyla dış etkenlere karşı mükemmel koruma sağlar. Dayanıklılığı ile uzun yıllar güvenle kullanabilirsiniz. Geniş İç Mekan ve Fonksiyonel Tasarım: 3 odalı bu ev, 149 m²’lik kullanım alanı ile geniş ve ferah bir iç mekan sunar. Aileniz ve misafirleriniz için konforlu yaşam alanları yaratılmıştır. Yüksek Isı ve Ses Yalıtımı: İç duvarlar 10 cm, dış duvarlar ise 10 cm kalınlığında olup, mükemmel ısı ve ses yalıtımı sağlar. Böylece enerji tasarrufu sağlarken, daha rahat bir yaşam alanı sunar. Şık Pencereler ve Güvenli Kapılar: Kurşunsuz PVC ERPEN pencereler, yüksek güvenlik ve yalıtım sağlar. PVC Kapı Pakpen balkon kapısı, hem dayanıklıdır hem de estetik bir görünüme sahiptir. Sıva Altı Elektrik ve Sıhhi Tesisat: Elektrik ve sıhhi tesisat sıva altına döşenmiş olup, evin iç mekanının düzenini korur ve güvenli bir kullanım sunar. Çatı ve Kapı Tasarımı Çatı Kaplama Seçenekleri: Çatıda boyalı galvaniz sac kullanılmıştır. Bu malzeme, uzun ömürlü ve dayanıklıdır. Metal kiremit opsiyonu da tercihe bağlı olarak kullanılabilir, bu da evinize şıklık katar. İç Kapılar: Evin iç mekanlarında Amerikan göbekli kapılar tercih edilmiştir. Bu kapılar, estetik ve şıklığı bir arada sunar. Evde Kullanılan Malzemeler ve Kalite Estetik Betopan Köşe Kaplamaları: Tüm köşelerde kullanılan Betopan köşe kaplamaları, hem dayanıklı hem de şık bir görüntü sunar. Sıva Altı Elektrik ve Sıhhi Tesisat: Sıva altına döşenen elektrik ve sıhhi tesisatlar, estetik bir iç mekan sunarken, güvenli kullanım sağlar.